search.scanner.init.message
Führungsteile und Laufteile für vorliegende (gefälzte) oder einligende Konstruktion, Belastbarkeit 15/30 kg, für Türb...
Gehäuse zum Anschrauben, Laufwerk zum Einclipsen, mit Höhenverstellung +2/-1 mm Beschläge-Garnitur für 2 Holzschiebet...
Komplett-Garnitur für 1 Türe mit 2 Flügeln Für Faltschiebetüren in neuer Komfortdimension: Die Öffnungsmechanik Push ...
Beschlag zum Drehen und seitlich Einschieben von Holztüren bis 25/35 kg. Einheitliche, flächenbündige Frontgestaltung...
untenlaufendes Schiebetürsystem für Holztüren mit optionalem Dämpfungssystem Silent System, am Laufteil integriert, d...
Abdeckleisten müssen auf individuelles Mass gekürzt werden Bestehend aus: 1x Scharnierleiste, Schwarz 1x Scharnierträ...
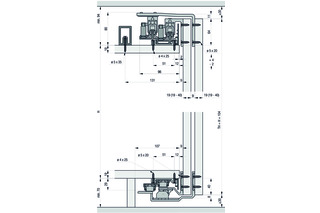
Angabe ohne Pocketrückwand. Eine Rückwandkonstruktion mit einer Dicke von mind. 3 mm ist erforderlich. Pocketschienen...
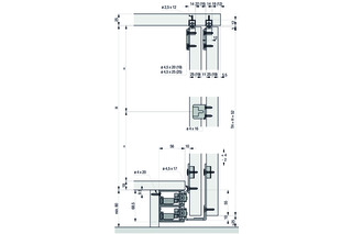
für inliegende und untenlaufende Türen, Belastbarkeit 40 kg Die gleiche Aluminiumschiene wird in die Nuten am Ober- u...
Korpusseitig angebundener 2-flügliger Falttürbeschlag. Das Laufteil lässt sich per Schnellmontage ins Laufprofil klip...
Set besteht aus: Lauf- und Führungsteile sowie Befestigungsmaterial für 2- / 3-türige Schiebetürschränke
mit oder ohne Dämpfeinzug Beschläge-Garnitur für 2 Holzschiebetüren bestehend aus: 2 Laufwerk, Innentüre, Stahl, verz...
2-bahniges, obenlaufendes Schiebetürsystem Höhenverstellung +/- 1,5 mm für Holztüren, ab 16mm Oberbodendicke, mit kom...
mit Holz- oder Aluminium Clipblende, Laufwerke zum Einbohren mit Höhenverstellung +/- 3 mm Beschläge-Garnitur für 2 o...
für innenliegende Türen, mit verstellbarem Endanschlag Schiebetürbeschläge Top Line sind verschieden kombinierbar. Ei...
Komplett-Garnitur für 1 Türe mit 2 Flügeln Für Faltschiebetüren in neuer Komfortdimension: Die Öffnungsmechanik Push ...
Gehäuse zum Anschrauben, Laufwerke zum Einclipsen, mit spielfreier Bodenführung Höhenverstellbar +/- 2 mm Beschläge-G...
Pocketverbinder oben: Pocketverbinderhöhe 10 mm für Fuge 0-6 mm Pocketverbinder unten: Pocketverbinderhöhe 3 mm für F...
Angabe ohne Pocketrückwand. Eine Rückwandkonstruktion mit einer Dicke von mind. 3 mm ist erforderlich. Pocket- und La...
Pocketverbinder oben: Pocketverbinderhöhe 10 mm für Fuge 0-6 mm Pocketverbinder unten: Pocketverbinderhöhe 3 mm für F...
Laufträgerverlängerung kann auf individuelles Mass gekürzt werden. Bestehend aus: 1x Befestigung für Laufträgerblende...
Laufträger kann auf individuelles Mass gekürzt werden. Bestehend aus: 1x Laufträger 1x Laufwagen 1x Laufwagenaufnahme...
Abdeckleisten müssen auf individuelles Mass gekürzt werden Bestehend aus: 1x Scharnierleiste 5x Zwischenscharnier 1x ...
Gehäuse zum Anschrauben, Laufwerk zum Einclipsen, Höhenverstellung +/- 2 mm Beschläge-Garnitur für 2 Holzschiebetüren...
Türe in der ganzen Höhe vor dem Regal oder Schrank laufend keine sichtbaren Schienen Laufwerke zum Einbohren, mit Höh...
Set enthält alle Lauf- und Führungsteile für 2- / 3- / 4-türige Schiebetürschrank
Beschläge-Garnitur für 2 oder 3 Holzschiebetüren bestehend aus: 2 Laufwerk, Innentüre, Aluminium, eloxiert (HAWA 055....
Gehäuse zum Anschrauben, Laufwerke zum Einclipsen, mit spielfreier Bodenführung Höhenverstellbar +/- 2 mm Beschläge-G...
Beschlägegarnitur für eine seitlich versenkbare Türe bis max. 14 kg Geeignet für Türstärken von 19-38 mm, hohe Stabil...
mit Holz- oder Aluminium Clipblende, Laufwerke zum Einbohren mit Höhenverstellung +/- 3 mm Beschläge-Garnitur für 2 H...
Gehäuse zum Anschrauben, Laufwerk zum Einclipsen mit Höhenverstellung von Innen +2/-1 mm Beschläge-Garnitur für 2 Hol...